New build movable home.
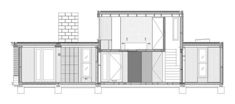
The small village of Bacton is strung along the Norfolk coastline, with white sandy beaches in both directions and the lowest rainfall in England. With bustling seaside towns to the north and south, this area is very much left to do its own thing even in the height of summer, making it the perfect retreat. The site itself perches high on top of the seawall, with an existing bungalow well-weathered by the northeast winds. Heostudio’s proposal for this unique site is a flexible new-build dwelling, that could in the future be relocated if fears of coastal erosion and rising water levels are realised. With the timber frame made in prefabricated sections, the build-time can be reduced to a minimum on this exposed site. And, as it may be rented to others for periods of time, renewable energy sources are used in a low-tech installation to minimise running costs. Though contemporary in style, the house has been developed with a palate of materials that are both sympathetic to their surroundings, and robust enough to deal with this harsh seaside environment.
Date: 2004-now
Floor area: 130m sq
Budget: approx. £85,000





